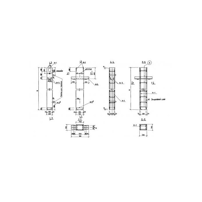
Колонна железобетонная КЛв 205 из серии 1.123 КР-1 предназначена для использования в строительстве как несущий элемент. Изделие обладает высокой прочностью и устойчивостью к воздействию внешних нагрузок, что делает его идеальным для возведения зданий различного назначения.
Оформим коммерческое предложение в течение 30 минут!
